Novostavba rodinného domu exkluzivní místo k bydlení.



Prodej - dům/vila, 209 m2

Plzeň

15 800 000 Kč (za nemovitost) Cena k jednání


Stáhnout kartu nemovitosti (PDF)

Novostavba rodinného domu exkluzivní místo k bydlení.

Dnes vám chceme představit kvalitní novostavbu rodinného domu, který se nachází před dokončením vnitřních prostor.
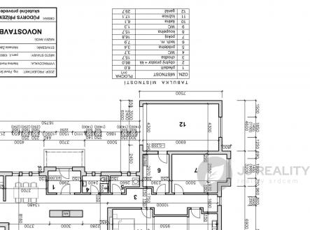
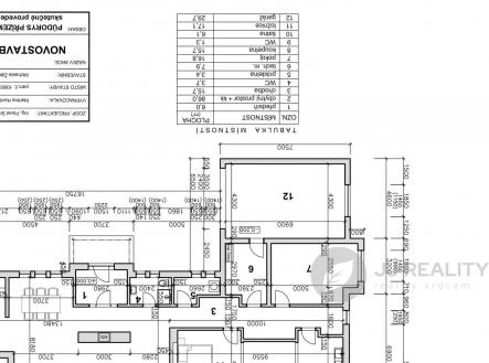
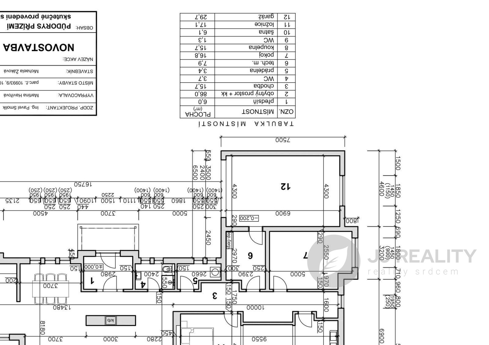
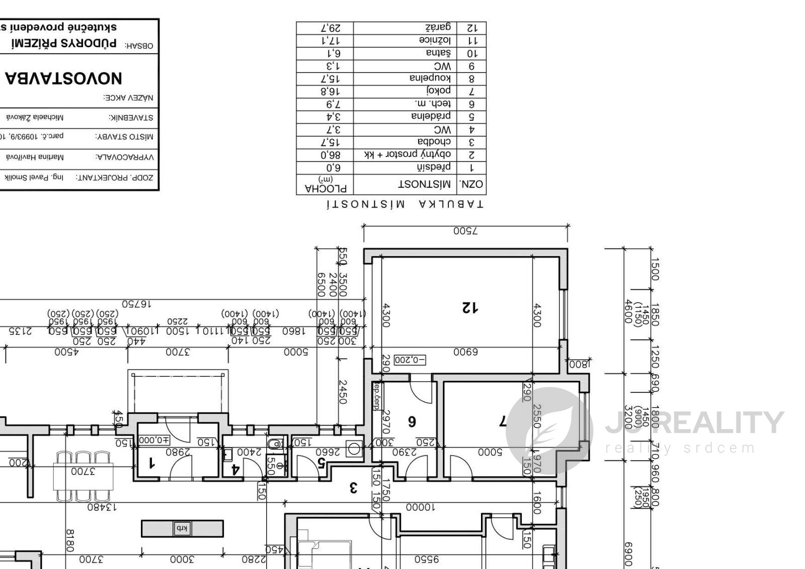
Tento nádherný prosvětlený dům je dispozičně velmi dobře řešený a nabízí komfortní prostorné bydlení, ideální pro vaši rodinu. Při vstupu projdeme chodbou, která nás zavede do srdce tohoto nízkoenergetického domu – obývacího prostoru s kuchyňským koutem. Tento prostor je dokonale prosvětlený a nabízí dostatek místa pro rodinné chvíle i sluneční paprsky, jeho plocha je s kuchyňským koutem 86m2 a uprostřed stěny, která odděluje otevřený a vzdušný prostor najdeme krb.
Vpravo od obývacího pokoje projdeme do další části domu , kde najdeme další místnosti: pokoj, ložnici, prostornou koupelnu, technickou a úklidovou místnost. Ženy jistě ocení samostatnou šatnu, která se nachází u ložnice, což přidává na praktičnosti a komfortu.
K domu náleží garáž o výměře 29 m², do které projdeme z technické místnosti. Dům je přízemní a z obývacího prostoru se dostaneme na krytou terasu, kde si můžete užívat klidné chvíle s rodinou.
Celý dům je postaven na rovinatém pozemku s výhledem na Plzeň, a to v krásné lokalitě nad ZOO Plzeň. Na jedné straně pozemku najdeme úchvatnou gabionovou zeď, která plní jak praktickou, tak estetickou funkci. Toto místo je opravdovým rájem klidu, přitom jen kousek od centra města.
Dům je před dokončením a kolaudací a prodává se v tomto stavu. Je jen na vás, jaké barevné provedení si vyberete a jak dotvoříte dům ke své dokonalosti. K této dokonalosti chybí zařizovací předměty a obklady koupelny, kuchyňská linka, poslední povrch podlah ( podlahová krytina), vnitřní dveře, obložky a tepelné čerpadlo. Veškerá dokumentace k domu je pro vás připravena. U této nemovitosti lze převzít hypotéka s fixací do roku 2029.
A protože vlastní zážitek je více než tisíc slov, těšíme se na vás na prohlídce tohoto domu na místě , které je jedinečné.

Podrobné informace

Cena 15 800 000 Kč (za nemovitost) Cena k jednání
Číslo zakázky 033
Poloha objektu samostatný
Druh objektu dřevěná
Stav objektu novostavba
Počet podlaží v objektu 1
Typ domu přízemní
Zastavěná plocha 209 m2
Užitná plocha 209 m2
Plocha parcely 1020 m2
Plocha zahrady 1020 m2
Umístění objektu klidná část obce
Komunikace asfaltová
Elektřina Elektro - 230 V; Elektro - 400 V
Voda Vodovod
Topení Jiné
Odpad ČOV pro celý objekt
Energetická náročnost budovy B - Velmi úsporná
Energetický ukazatel
podle vyhlášky
č. 264/2020 Sb.
Plocha zahrady 1020 m2